Nowoczesne Domy Parterowe
w Zabudowie Bliźniaczej – Krępa Słupska

Twój wymarzony dom w harmonii z naturą i blisko miasta!

Lokalizacja premium

Inwestycja powstaje w urokliwej i spokojnej miejscowości Krępa Słupska, przy ul. Miodowej. To idealne miejsce dla osób ceniących ciszę, komfort oraz szybki dojazd do centrum Słupska.

Charakter inwestycji

Oferujemy przestronne domy parterowe w zabudowie bliźniaczej, zaprojektowane z myślą o nowoczesnym stylu życia i wygodzie codziennego użytkowania. Każdy dom posiada:

niezależne wejście,
własny ogród,
możliwość adaptacji poddasza.

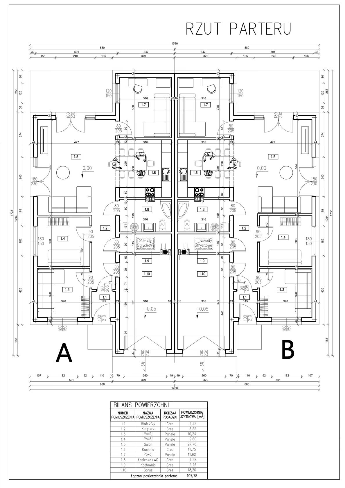
Powierzchnia użytkowa parteru: 107,78 m²
Możliwa adaptacja poddasza: do 40 m²
Powierzchnia działki: 524 i 525 m²

Standard i technologia wykonania

Domy zostały zaprojektowane i wykonane z użyciem sprawdzonych materiałów najwyższej jakości.

  • Konstrukcja: murowana z bloczków gazobetonowych, ściany ocieplone styropianem 20 cm
  • Dach: wielospadowy, konstrukcja drewniana, dachówka cementowa Goteborg Duratopro
  • Elewacja: elegancki tynk silikonowy z elementami drewna / imitacji drewna
  • Okna: 3-szybowe PCV, w kolorze jasny dąb (dwustronnie)
  • Drzwi: antywłamaniowe z przeszkleniem
  • Garaż: brama segmentowa z napędem elektrycznym
  • Ogrzewanie: podłogowe (łącznie z garażem) + piec gazowy dwufunkcyjny (w cenie)
  • Instalacje: elektryczna, wodno-kanalizacyjna, internet światłowodowy
  • Otoczenie: częściowe ogrodzenie, podjazd i taras wyłożone kostką, teren wyrównany i przygotowany pod aranżację

Wykończenie stanu deweloperskiego 

obejmuje m.in.:

  • gipsowe tynki maszynowe,
  • jastrych cementowy,
  • sufity z płyt gipsowych,
  • kamienne parapety wewnętrzne i zewnętrzne.

Funkcjonalny układ pomieszczeń (parter):

  • wiatrołap
  • hol
  • przestronny salon z aneksem kuchennym
  • 3 sypialnie
  • łazienka
  • pomieszczenie gospodarcze / kotłownia
  • garaż
  • taras z wyjściem na ogród
BudynekPowierzchniaStatus Cena za 1m2 domuCałkowita cena domu
A107,78 m2wolny6 021,53 zł649 000,00 zł
B107,78 m2rezerwacja6 021,53 zł649 000,00 zł

Skontaktuj się z nami i poznaj szczegóły oferty
– Twój nowy dom czeka właśnie tutaj!

Biuro Sprzedaży In-Dom NIERUCHOMOŚCI

76-200 Słupsk, ul. Marii Konopnickiej 13B

    Polityka prywatności | Przetwarzanie danych osobowych